Lonsdale Estate Agents - Property Details

Skip To Content

Brackendale Avenue, Thackley, BD10 3 Bedroom Chalet House For Sale

£297,000.00

  • 3 Bedrooms
  • 1 Bathroom
  • 1 Floor Plans
Mortgage Calculator
£
£
%
Monthly repayments £0
Total cost of mortgage £0
LTV 85%

Council Tax Band : C
Estate Fee : Not Set
Building Insurance : Not Set

Quick Facts
Parking
  • Covered
  • Driveway
Heating
  • Double Glazing
  • Gas Central
Outside Space
  • Back Garden
  • Front Garden
Entrance Floor
  • Ground Floor
Condition
  • Pristine
Property Features
  • Superbly presented modernised 3 bedroom chalet semi-detached
  • Lots of internal improvements made recently
  • New kitchen and shower room & new upvc dg french doors
  • Spacious lounge
  • Kitchen diner
  • Downstairs shower room
  • Downstairs bedroom 3
  • Upstairs are 2 double bedrooms
  • Front & rear large garden plus drive and detached garage
  • Ideal young family home
  • Close to canal and woodland walks
  • Viewing essential
Property Description

SUPERBLY PRESENTED 3 BEDROOM CHALET SEMI-DETACHED * FULLY MODERNISED THROUGHOUT WITH MANY IMPROVEMENTS * NEW KITCHEN AND SHOWER ROOM * NEW UPVC DG FRENCH DOORS * SPACIOUS LOUNGE WITH A FEATURE FIREPLACE * KITCHEN DINER * DOWNSTAIRS SHOWER ROOM * DOWNSTAIRS BEDROOM 3 * UPSTAIRS ARE 2 DOUBLE BEDROOMS * GCH WITH A VIESSMANN CONDENSING COMBI-BOILER * UPVC DG WINDOWS AND DOORS * FRONT GARDEN * LARGE REAR GARDEN * DRIVE FOR SEVERAL CARS AND A DETACHED GARAGE WITH LIGHT & POWER * CLOSE TO CANAL AND WOODLAND WALKS * THIS IS AN IDEAL YOUNG FAMILY HOME * READY TO WALK IN TO * POTENTIAL TO ADD A SIDE DORMER IF NEEDING TO EXPAND THE PROPERTY * VIEWING ESSENTIAL *  

Set on Brackendale Avenue in popular Thackley, this superbly presented and modernised three bedroom chalet semi-detached home is the kind of property you can move straight into and start enjoying from day one. With lots of internal improvements made recently, it offers a lovely balance of contemporary finishes and practical family space, all wrapped up in a warm, welcoming feel.

Entered on the ground floor, the layout is ideal for everyday life. A side hallway offers a useful storage cupboard which houses a top of the range Viessmann boiler, a spacious lounge gives you room to relax, entertain and unwind, while the kitchen diner is a real heart-of-the-home space, enhanced by a new kitchen that feels fresh, stylish and ready for everything from weekday breakfasts to weekend hosting. New uPVC double glazed French doors open out to the garden, bringing in plenty of natural light and making indoor-outdoor living effortless in the warmer months.
A particular highlight is the flexibility this home offers. The downstairs shower room is newly fitted and perfect for busy mornings, and the ground floor bedroom three works beautifully as a child’s room, guest room or a calm home office, depending on what you need right now. Upstairs you’ll find two generous double bedrooms, providing comfortable, private spaces that suit a growing family or anyone wanting a little extra room.
Outside, the property continues to impress with gardens to both the front and rear, offering space to play, garden, dine outside or simply enjoy a bit of peace and privacy. A driveway and detached garage add valuable parking and storage, making day-to-day life that bit easier.
The location is another strong pull, with the canal and woodland walks close by for fresh air, headspace and weekend adventures. You’re also within easy reach of supermarkets, schools, leisure facilities and healthcare services, with rail links accessible for commuting and getting further afield.
Why buy this property? Because it’s an ideal young family home that has already had the big-ticket improvements taken care of, it offers flexible living across two floors, and it pairs generous outdoor space with a setting that encourages a healthier, more relaxed lifestyle. Viewing is essential to appreciate just how well this home has been updated and how comfortably it flows.

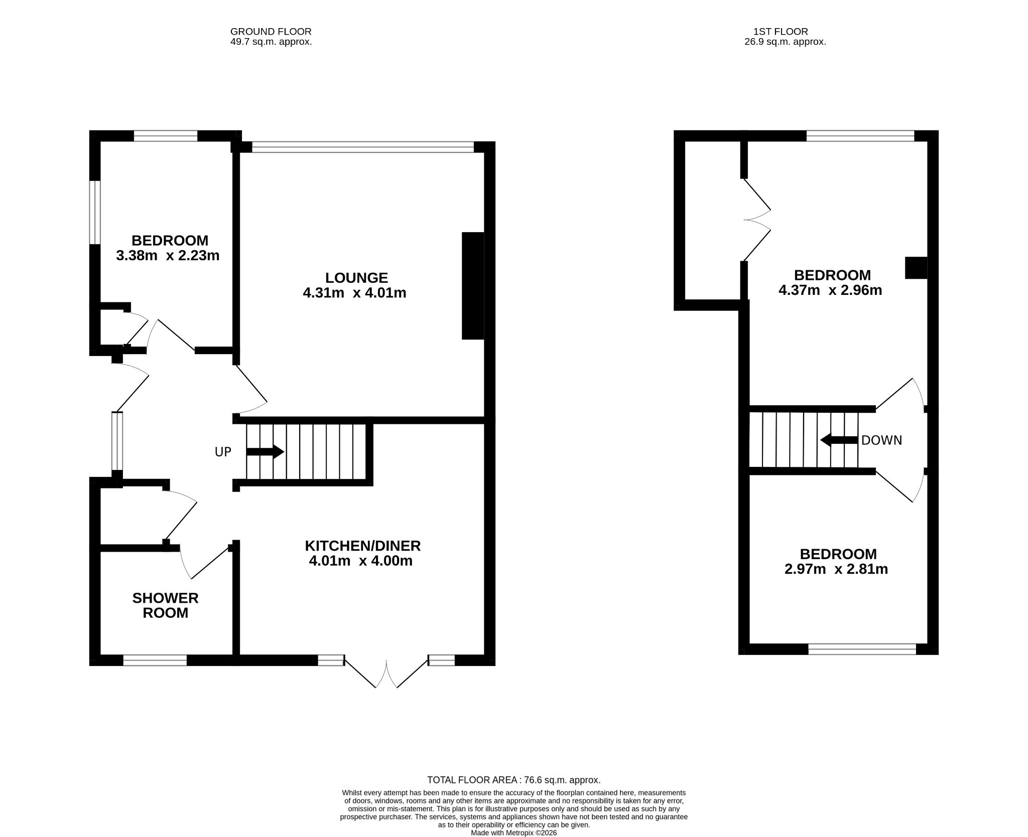
Entrance: Upvc dg side glazed door and side panes, laminate floor in grey, upright contemporary radiator, staircase, useful coats cupboard houses the Viessmann condensing combi-boiler.  

Lounge: 4.31m x 4.01m (14'1 x 13'1). Upvc dg bay window to front, radiator, feature marble fireplace with a living flame coal effect gas fire.   

Kitchen Diner: 4.01m x 4.00m (13'1 x 13'0). Modern newly installed range of wall & base units in white, work tops with matching splash backs and under lighting, plinth mood lighting, plumbed for an auto-washer and dishwasher, space for a tall boy American fridge freezer, built in stainless steel electric oven, induction hob with a black glass extractor and light over, stainless steel 1.5 sink with a glass top protector and mixer tap, upright contemporary radiator, laminate flooring in grey, Upvc dg French doors to the rear with fitted blinds.     

Bedroom 3: 3.38m x 2.23m (11'0 x 7'3). Upvc dg windows to front and side, radiator, useful cupboard.  

Shower Room: 2.21m x 1.79m ( 7'2 x 5'8). Large walk in shower cubicle with a chrome thermostatically controlled shower unit with a rainhead and hand attachment, the walls are Upvc marble effect cladding, frosted Upvc dg window, wash basin set on a high gloss vanity unit, wc, upright contemporary radiator. 

Landing & Stairs: Access into the roof space. 

Bedroom 1: 4.37m x 2.96m (14'3 x 9'7). Upvc dg window to front, radiator, fitted wardrobes in white leads into a walk in dressing area, door into the eaves offers additional under drawing storage.

Bedroom 2: 2.97m x 2.81m (9'7 x 9'2). Upvc dg window to rear, radiator.

Externally: To the front is hedging, lawned garden, flagged pathway, drive for several cars, detached garage with an up and over door and side door, light & power. Gated access leads onto the large rear lawned garden, flagged patio, water tap, sensor security lighting, external power sockets. 

While we endeavour to make our sales particulars fair, accurate and reliable, they are only a general guide to the property and, accordingly, if there is any point which is of particular importance to you, please contact the office and we will be pleased to check the position for you, especially if you are contemplating travelling some distance to view the property.

3. The measurements indicated are supplied for guidance only and as such must be considered incorrect.

4. Services: Please note we have not tested the services or any of the equipment or appliances in this property, accordingly we strongly advise prospective buyers to commission their own survey or service reports before finalising their offer to purchase.

5. THESE PARTICULARS ARE ISSUED IN GOOD FAITH BUT DO NOT CONSTITUTE REPRESENTATIONS OF FACT OR FORM PART OF ANY OFFER OR CONTRACT. THE MATTERS REFERRED TO IN THESE PARTICULARS SHOULD BE INDEPENDENTLY VERIFIED BY PROSPECTIVE BUYERS OR TENANTS. NEITHER MARTIN LONSDALE ESTATES LIMITED NOR ANY OF ITS EMPLOYEES OR AGENTS HAS ANY AUTHORITY TO MAKE OR GIVE ANY REPRESENTATION OR WARRANTY WHATEVER IN RELATION TO THIS PROPERTY. 

AML Please note if you proceed with an offer on this property we are obliged to undertake mandatory Anti Money Laundering checks on behalf of HMRC. All estate agents have to do this by law and we outsource this process to our compliance partners Credas who charge a fee for this service.                     

Contact the agent

Property Reference: 0015490

Property Data powered by StandOut Property Manager

Fee Information

The advertised rental figure does not include fees.

Thank you for your team's professionalism and helpfulness with our house sale. Jason was especially knowledgeable and kept me informed throughout the process. It is refreshing to deal with such a capable company at what can be a stressful time and I would definitely recommend you. Best wishes Christine S.
Hi Martin Just a note to say a big thank you to your staff and yourself for the exceptional service which we received during the sale of our house on Cross Rd and the help which you offered on the purchase of our new property. A fantastic service all round at a more than reasonable price. I would strongly recommend that anybody looking to sell includes you in any quotes as I'm sure they'll be pleasantly surprised at the difference in costs without jeopardising service and advertising coverage. Hope you all have a great Christmas. Thanks again Steve & Jo R
Your stars. If only our Scottish shower could compare. Just wanted to say a huge thank you for all the help we received from you and all your staff. It was very much appreciated. Many thanks Judith and Allan.
I just wanted to drop you a note to thank you for your help and support during the sale of our house. It has been highly appreciated and we couldn't have done this and get here (finally!) without your help. Although stressful, you have made this whole process easier for us. Can't thank you enough honestly. Thank you again James & Laura M. 21st June 2021.
At Last! Denisa has told me the good news! Thank you for getting the meters read. Please can you send me the readings as I need them in order to submit my forms? I really appreciate all the help you have given me, and your patience too! I hope most of your sales are less fraught.... Best wishes Lis
We have used Martin a couple of times to sell properties and to buy from him, we have found him to be very knowledgeable, honest and ‘on the ball’. We would use him over some of the other purple bricks type companies as with this type of purchase you need something to glue all the components together, with his upbeat positive, can do attitude we felt confident that he would sell our property and keep everything on track- which he did. 9th May 2021.
To Martin, Oriel and staff. Thank you for being so patient with our sale at Brackendale. Love Karen and Mark J******.
BIG THANKS MARTIN for selling our house ** Park Road, Eccleshill. Much appreciated for all your help. Linda & Keith Thompson. 24th May 2021.
Dear All, Thank you for handling of our house sale, it was nice not to have to worry about anything as you did everything for us. Best wishes Carolyn and Steve Pratt
To All Staff at Martin Lonsdale Estate Agents, Thank you for your care and consideration in selling our family home. Pamela, Ruth, Brian & Peter.
view all testimonials >
National Health Discounts

You appear to have Javascript disabled. Some of this site’s features require Javascript to function.