Lonsdale Estate Agents - Property Details

Skip To Content

Leeds Road, Thackley, BD10 3 Bedroom Detached House For Sale

Offers invited £329,950.00 No chain sale

  • 3 Bedrooms
  • 1 Bathroom
  • 1 Virtual Tours
  • 1 Floor Plans
Mortgage Calculator
£
£
%
Monthly repayments £0
Total cost of mortgage £0
LTV 85%

Council Tax Band : D
Estate Fee : Not Set
Building Insurance : Not Set

Quick Facts
Additional Features
  • Burglar Alarm
Parking
  • Garage
  • Driveway
  • Private
Heating
  • Double Glazing
  • Gas Central
Outside Space
  • Back Garden
  • Front Garden
  • Patio
Entrance Floor
  • Ground Floor
Accessibility
  • Level access
Condition
  • Good
Property Features
  • 3/4 bedroom detached
  • 2 reception rooms but one can be used as a downstairs bedroom if required
  • Breakfast kitchen
  • Downstairs bathroom
  • One downstairs bedroom and 2 upstairs bedrooms presently
  • Gch and upvc dg windows and alarmed plus cctv system
  • Large plot with a front south facing and sw facing side garden plus rear garden
  • Rear double detached garage with a drive in front for 1 car
  • Access to the rear drive is by a private road for residents only
  • Needs a little updating
  • Great potential
  • No chain sale
Property Description

3/4 BEDROOM DETACHED WITH 2 RECEPTION ROOMS BUT ONE COULD BE USED AS A FURTHER DOWNSTAIRS BEDROOM IF REQUIRED * THE PRESENT CONFIGURATION ON THE GROUND FLOOR IS HALLWAY * LOUNGE * KITCHEN DINING * RECEPTION ROOM 2 * DOWNSTAIRS BATHROOM * STORAGE CUPBOARD * DOUBLE BEDROOM 1 * UPSTAIRS SPACIOUS LANDING WITH UNDER DRAWING STORAGE * 2 DOUBLE BEDROOMS * GCH WITH A VAILLANT ECO CONDENSING COMBI-BOILER * UPVC DG WINDOWS AND DOORS * ALARMED * LARGE FORNT LAWNED SOUTH FACING GARDEN * SIDE SW LAWNED GARDEN * PATIO AREAS * REAR FLAGGED GARDEN * REAR DOUBLE DETACHED GARAGE * DRIVE FOR 1 CAR IN FRONT * BEING SOLD WITH NO UPWARD CHAIN * NEEDS A LITTLE MODERNISATION * 

Offered for sale with no onward chain, this spacious three/four-bedroom detached house presents an excellent opportunity for families or those seeking a generously sized home with flexible accommodation. Situated on the ever-popular Leeds Road in Thackley, this property occupies a substantial plot with attractive gardens, a detached double garage, and a private residents-only rear access road.

The ground floor comprises two charming reception rooms, one of which could be easily utilised as a fourth bedroom or home office, depending on your needs. The well-proportioned breakfast kitchen is ideal for family dining, while the ground floor also benefits from a convenient bathroom. One double bedroom is located on the ground floor, providing additional flexibility for intergenerational living or guest accommodation. Upstairs, you will find two further generously sized double bedrooms.
The property features gas central heating, uPVC double glazed windows throughout, and a fitted security alarm. While it would benefit from some modernisation, it has excellent potential to become a lovely forever home tailored to your taste. The home sits on a large corner plot with a south-facing front garden and a south-west-facing side garden, perfect for enjoying the sun throughout the day. To the rear, there is a further enclosed garden space, as well as a detached double garage and a private driveway with room for off-street parking.
Ideally located, the property is within walking distance of local shops and a short drive to the many supermarkets for day-to-day convenience. Two well-regarded primary and secondary schools are nearby, making it a great location for families. 
The area is well connected, with Apperley Bridge and Shipley train stations both within approximately a 10-minute drive, providing links to Leeds, Bradford and beyond—ideal for daily commuting. Leeds Bradford Airport is also easily accessible by car, situated around six miles away, offering convenient travel for both business and holiday purposes.
With its plentiful outdoor space, adaptable layout, and excellent location, this property offers great potential and an exciting opportunity not to be missed. Early viewing is highly recommended.

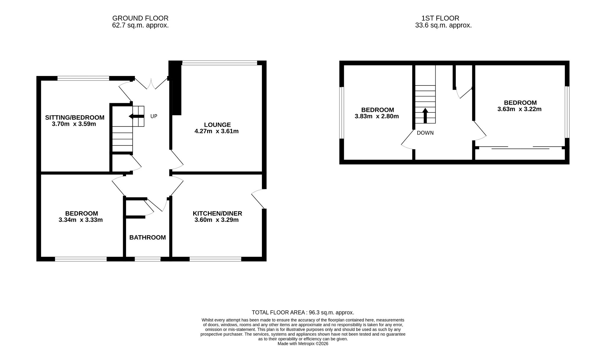
Hallway: Front Upvc dg part glazed door into the hallway, stairs, under stairs storage cupboard, radiator.

Sitting Room or Bedroom 2: 3.70m x 3.59m (12'1 x 11'8). Upvc dg window with a fitted blind to front, radiator under.  

Lounge: 4.27m x 3.61m (14'0 x 11'8). Upvc dg window with a fitted blind, two radiators, Louis style fireplace surround with marble back and hearth and a gas fire.

Kitchen Diner: 3.60m x 3.29m (11'8 x 10'7). Range of wall & base units in oak, work tops with tiling above, extractor over a 4 ring gas hob and built in double gas oven, plumbed for an auto-washer, stainless steel sink,  Upvc dg window to rear, integrated fridge and freezer, radiator, space for a breakfast table and chairs, wall mounted Vaillant Eco Fit Pure condensing combi-boiler, side part glazed Upvc dg door, alarm panel.

Bedroom 1: 3.34m x 3.33m (10'9 x 10'9). Upvc dg window to rear with a fitted blind, radiator under. 

Bathroom: 2.33m x 1.79m (7'6 x 5'8). Three piece suite in white, chrome fittings, shower screen with a chrome thermostatically controlled shower unit, fully tiled, frosted Upvc dg window, radiator, useful linen cupboard.

Landing & Stairs: Spacious landing, two access doors to useful roof under drawing storage, radiator, useful storage cupboard. 

Bedroom 3: 3.83m x 2.80m (12'5 x 9'1). Side Upvc dg window, radiator under. 

Bedroom 4: 3.63m x 3.22m (11'9 x 10'5). Upvc dg window to side with a fitted blind, radiator under, full wall length of fitted sliding mirror wardrobes.   

Externally: Large front lawned south facing garden with planted borders, flagged pathway and patio, flagged pathway from a gated access, side south west facing lawned garden area, flagged patio, and rear flagged patio, water tap, shed, gate which leads out to the double detached garage, with light and power and a main door and additional door, concrete drive for one car parking in front. CCTV System in place. 

While we endeavour to make our sales particulars fair, accurate and reliable, they are only a general guide to the property and, accordingly, if there is any point which is of particular importance to you, please contact the office and we will be pleased to check the position for you, especially if you are contemplating travelling some distance to view the property.

3. The measurements indicated are supplied for guidance only and as such must be considered incorrect.

4. Services: Please note we have not tested the services or any of the equipment or appliances in this property, accordingly we strongly advise prospective buyers to commission their own survey or service reports before finalising their offer to purchase.

5. THESE PARTICULARS ARE ISSUED IN GOOD FAITH BUT DO NOT CONSTITUTE REPRESENTATIONS OF FACT OR FORM PART OF ANY OFFER OR CONTRACT. THE MATTERS REFERRED TO IN THESE PARTICULARS SHOULD BE INDEPENDENTLY VERIFIED BY PROSPECTIVE BUYERS OR TENANTS. NEITHER MARTIN LONSDALE ESTATES LIMITED NOR ANY OF ITS EMPLOYEES OR AGENTS HAS ANY AUTHORITY TO MAKE OR GIVE ANY REPRESENTATION OR WARRANTY WHATEVER IN RELATION TO THIS PROPERTY. 

AML Please note if you proceed with an offer on this property we are obliged to undertake mandatory Anti Money Laundering checks on behalf of HMRC. All estate agents have to do this by law and we outsource this process to our compliance partners Credas who charge a fee for this service. 


             

 

Contact the agent

Property Reference: 0015473

Property Data powered by StandOut Property Manager

Fee Information

The advertised rental figure does not include fees.

Thank you for your team's professionalism and helpfulness with our house sale. Jason was especially knowledgeable and kept me informed throughout the process. It is refreshing to deal with such a capable company at what can be a stressful time and I would definitely recommend you. Best wishes Christine S.
Hi Martin, It is so refreshing to find an estate agents where all the staff are so friendly and so very efficient you should be very proud of your team. If you had not sold your letting business I would certainly have re-rented via you. I hope however it was the right decision for you and that the sales business is good. Lynne G. (An ex landlord that we sold for when she decided she wanted to off load her rental property that we looked after).
Your stars. If only our Scottish shower could compare. Just wanted to say a huge thank you for all the help we received from you and all your staff. It was very much appreciated. Many thanks Judith and Allan.
We'd just like to thank you for being such a great agency for the time we spent letting 22 Tenterfields; by far the best letting agency we have ever used, and we'd be happy to recommend you to others! We are extremely grateful for the support you have provided us over the last 7 months. Kindest Regards, Gary and Natasha
To everyone at Lonsdales, thank you for selling ''mega mansion'', especially to Jason who had to put up with me the most! Love from Philippa and Bernard x
I just wanted to drop you a note to thank you for your help and support during the sale of our house. It has been highly appreciated and we couldn't have done this and get here (finally!) without your help. Although stressful, you have made this whole process easier for us. Can't thank you enough honestly. Thank you again James & Laura M. 21st June 2021.
“We cannot speak highly enough of Martin Lonsdale... his service has been brilliant throughout our house sale! Martin has gone above and beyond for us. Nothing is ever too much trouble for him, he always responds quickly to communication. He has been the one person we could rely on to do a good job in the whole buying and selling process! We are so glad we chose a local estate agent to sell our house over an internet one, it’s been invaluable to have that personal service and local market knowledge!” 18th May 2021. Jonny & Georgie
Dear Martin, I am writing to thank you, Julie and Lynne for the support throughout the sale of my mother's house in Pudsey (* The Fairway). Your regular updates by email and telephone helped considerably to ensure things progressed smoothly. I would be pleased to recommend your organisation to others requiring an Estate Agent. Could I take this opportunity to wish everyone a Happy Christmas and New Year. Yours faithfully, M Driver. 16/12/2019.
Dear All, Thank you for handling of our house sale, it was nice not to have to worry about anything as you did everything for us. Best wishes Carolyn and Steve Pratt
To Julie and Martin, Thank you for all your help and support for the last 7 years. End of an era, helping me rent out my house and finally a sale (very quickly). Love from Shelley S.
view all testimonials >
National Health Discounts

You appear to have Javascript disabled. Some of this site’s features require Javascript to function.